冷却水循環装置製作
内容
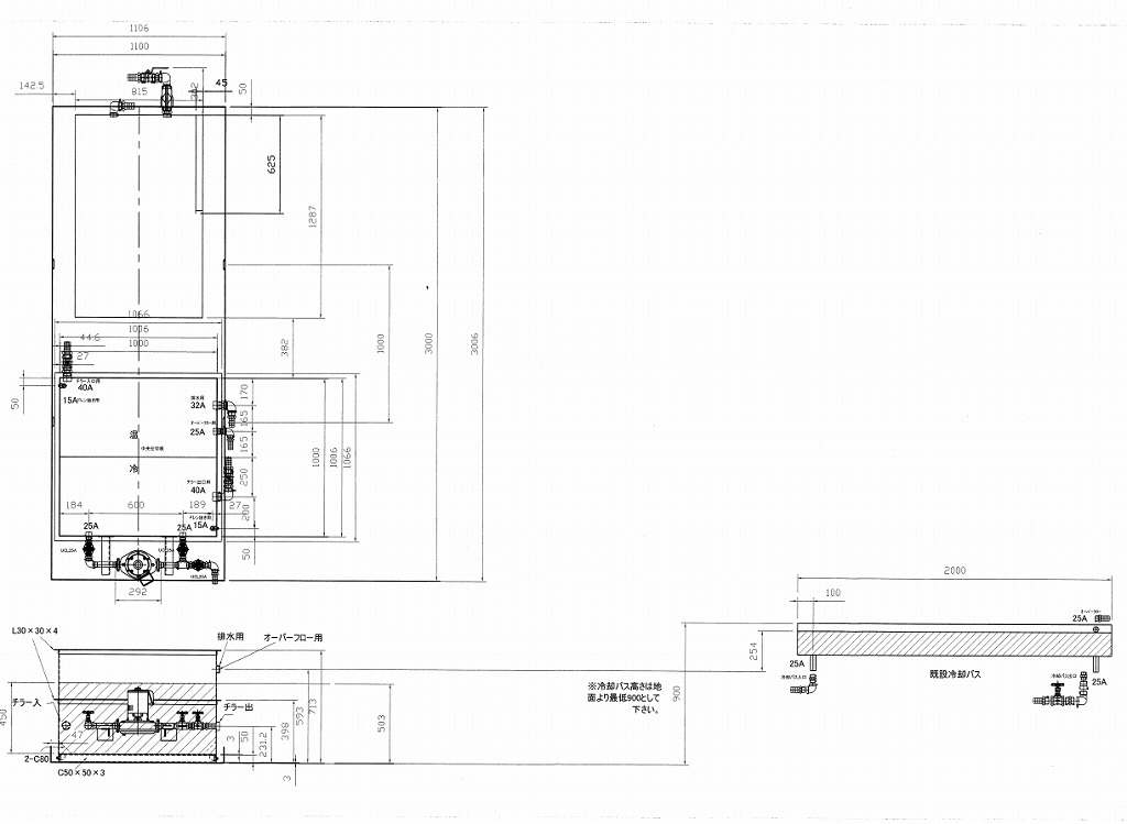
この事例は、PET樹脂の冷却用に循環水を冷却する装置の製作に関するものです。必要な冷却熱量を計算し、その基にユニットクーラーを選定しました。製作したドレンパンにユニットクーラーと循環ラインポンプを取り付け、冷却水循環装置として周南地区の製鉄工場に納入しました。
・装置の背景・課題
お客様よりPET樹脂の冷却用循環水の冷却装置のご相談を頂きました。冷却装置の選定から冷却装置の構成のご依頼頂きました。
・改善効果・当社からの提案
現場確認を行い、想定される使用条件をお聞きして必要冷却熱量を計算してユニットクーラーを選定しドレンパンにユニットクーラーと循環ラインポンプを組付けた装置で提案をしました。当社では、冷熱装置の選定及び構成の実績もあります。是非一度、当社にご相談ください。


